Tag: Sant’Orsola
Nuovo complesso residenziale in via Sant’Orsola: arriva il via libera
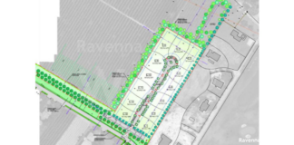
Via libera all’urbanizzazione di via Sant’Orsola alle porte di Faenza. Su 26 mila metri quadrati di terreno, poco dopo i campi da golf, verrà...
Faenza Eco-logica: “Si continua a costruire case anche in zone alluvionabili”
"A 5 mesi dall'alluvione, si riaccendono i mai sopiti appetiti degli immobiliaristi" l'accusa è di Faenza Eco-logica, dopo le ultime notizie rilanciate dalla stampa.
"Il...
Trapianto a cuore fermo all’ospedale di Ravenna: è il primo in...
nche un cuore che ha smesso di battere da venti minuti può salvare una vita. Lo rende possibile una procedura innovativa applicata dagli specialisti...
Coronavirus, l’allerta dal Sant’Orsola: “Cortisone assunto prematuramente peggiora l’infezione”
Un’indicazione arrivata dall’ospedale Sant’Orsola di Bologna, firmata da alcuni dei più importanti infettivologi italiani riguardante la nuova ondata di contagi e di ricoveri in...
Faenza Coraggiosa: “Riqualificare la città, non consumare altro suolo”
“A fronte delle concessioni urbanistiche, le opere di compensazione garantiscano l’interesse pubblico, rigenerando spazi fruibili diventando volano di rigenerazione urbana”. Faenza Coraggiosa entra nel...
Nasce in Emilia-Romagna lo studio internazionale che scopre le cause della...
“Lo studio del Policlinico Sant’Orsola di Bologna, che ha coinvolto anche il Policlinico di Modena e l’Università di Modena e Reggio Emilia, sui meccanismi...





























































