Tag: resta
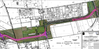
Nuovo collegamento a nord, ma viale Mattei resta una tangenziale di...
Il nuovo collegamento viario tra la circonvallazione nord e l’area delle Bassette è stato avviato sul piano progettuale, ma secondo Alvaro Ancisi, capogruppo di...
Grandi (FDI): “Stazione vetrina, città bloccata: il sottopasso di via Canale...
"Tagli di nastro, spazi espositivi e vetrate illuminate: la stazione ferroviaria di Ravenna viene raccontata come simbolo di rinascita urbana e culturale. Ma mentre...
Cade nel fiume Ronco e resta aggrappato all’argine: salvato dai vigili...
Attimi di paura nella notte tra sabato 25 e domenica 26 ottobre lungo il fiume Ronco, nei pressi della chiusa di Borgo Montone a...
Infortuni sul lavoro, la Romagna resta in trincea: quasi 13mila denunce...
In occasione della 75ª Giornata Nazionale per le Vittime degli Incidenti sul Lavoro che quest’anno si celebra il 12 ottobre, la CISL Romagna richiama...
Calcio: Alessandro Bianconi è un nuovo giocatore del Ravenna FC e...
Il Ravenna FC comunica di aver perfezionato l’accordo per il tesseramento di Alessandro Bianconi, difensore centrale classe 1999, che ha sottoscritto un contratto biennale...
Travolta e uccisa in spiaggia: resta in carcere l’uomo alla guida...
Resta in carcere Lerry Gnoli, 54 anni, residente a Montaletto di Cervia, arrestato per la morte di Elisa Spadavecchia, la turista vicentina di 66...
Studiare all’estero nel 2025: perché il Regno Unito resta una meta...
Nel 2025, il Regno Unito continua a essere tra le destinazioni più ambite da chi desidera formarsi all’estero, nonostante l’uscita dall’Unione Europea abbia complicato...
Ancisi (LpRa): Via Stradone resta malmessa e pericolosa
"Tra l’infinito elenco di opere pubbliche che de Pascale ha annunciato e promesso nel corso dei suoi otto anni da sindaco, ma che non...
Bassa Romagna: tempo in miglioramento per lunedì, ma resta alta l’attenzione
Per la giornata di lunedì 21 ottobre non sono previsti fenomeni meteorologici significativi: è stata tuttavia emanata un’allerta arancione che interessa anche il territorio...
Prefettura: “Nonostante il miglioramento delle condizioni meteo la situazione resta critica”
Procede senza sosta l’attività di coordinamento degli interventi del Centro Coordinamento Soccorsi attivo in Prefettura dal giorno 2 maggio u.s..
L’attuale situazione di criticità è...






























































